Leave a Message

By providing your contact information to Brink Team Homes, your personal information will be processed in accordance with Brink Team Homes's Privacy Policy. By checking the box(es) below, you consent to receive communications regarding your real estate inquiries and related marketing and promotional updates in the manner selected by you. For SMS text messages, message frequency varies. Message and data rates may apply. You may opt out of receiving further communications from Brink Team Homes at any time. To opt out of receiving SMS text messages, reply STOP to unsubscribe.

Thank you for your message. We will be in touch with you shortly.

Explore Our Properties

Property Description

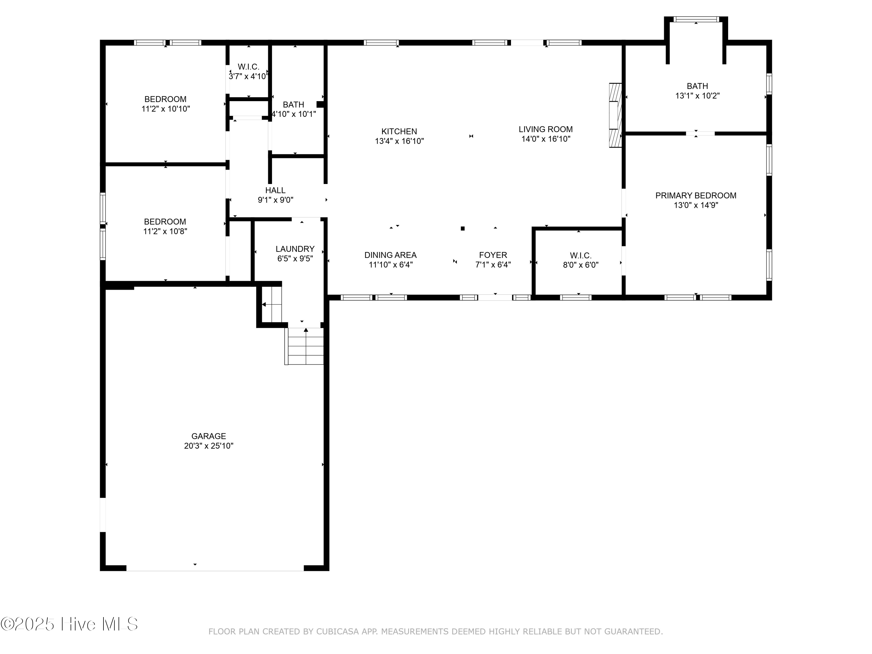
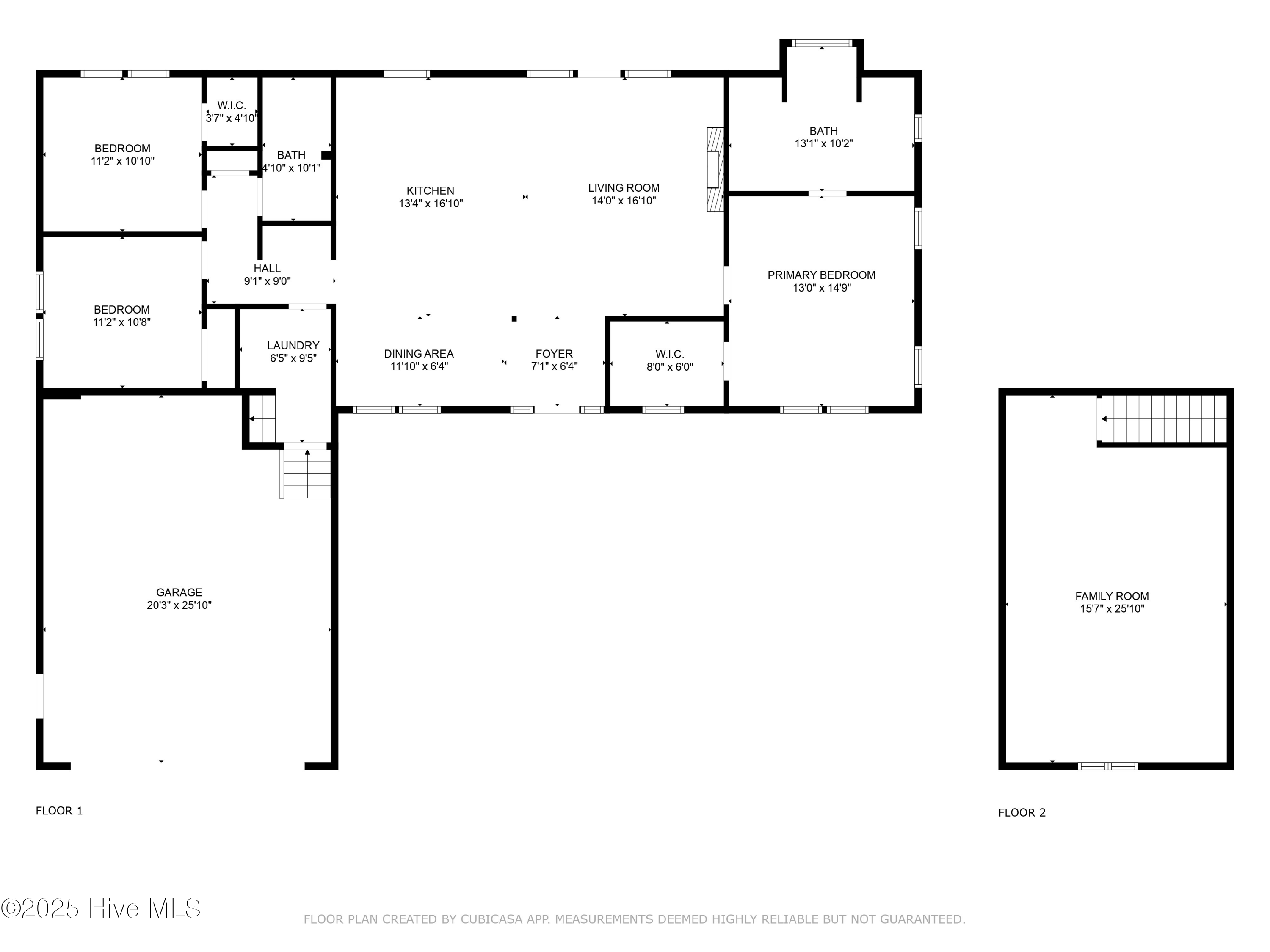
Built in 2018 by Currituck Homes, this updated 3-bed, 2-bath home on 3 acres shows like new! Features cathedral ceilings, updated baths with granite, tile, and cabinets, plus a built-in electric fireplace with shelves. The kitchen offers a brand-new refrigerator, dishwasher, and induction stove, plus a butlers pantry. Laundry room includes cabinets and pull-out shelves. The primary and one guest bedroom have walk-in closets. Bonus room above garage with mini split. Tons of attic storage. Fenced backyard with a large entertaining deck, built-in flower boxes, pool storage, and fire pit. The pool includes an upgraded sand filter. Full well system with carbon tank and water softener. Two exterior 30-amp outlets for RV and generator. Move-in ready with thoughtful upgrades inside. NC #331438

Overview

Property Status
Sold
Lot Size
3 Acres
MLS ID
100531058
Property Type
Residential
Year Built
2024

Features & Amenities

Total Area
1,930 Sq.Ft.
Neighborhood
Moyock
Stories
2
Garage Spaces
2.0
Water Source
Well
Utilites
Cable Available
Pool
Above Ground
Roof
Shingle
Lot Features
Open Lot
Parking
Garage Faces Front, Concrete, Garage Door Opener, Unpaved
Heat Type
Heat Pump, Electric
Air Conditioning
Central Air, Heat Pump
Laundry Room
Washer Hookup, In Hall
Appliances
Washer, Refrigerator, Range, Dryer, Dishwasher, Microwave, Electric Water Heater
Other Interior Features
Master Downstairs, Vaulted Ceiling(s), Ceiling Fan(s)
Sewer
Septic Tank
Disability Features
Accessible Full Bath
Elementary School
Moyock Elementary
Middle School
Moyock Middle School
High School
Currituck County High
Sales Price
$600,000
Zoning
SFR

Downloads

344 Puddin Ridge Road

Schedule a Tour

We would love to help you see this beautiful home! As a full-service brokerage, we can help you tour. Please submit an offer, and answer questions about the buying process.

Thank you

for your interest in 344 Puddin Ridge Road, Moyock, NC 27958

344 Puddin Ridge Road
Navigate

 

Moyock

Explore Moyock

read more
344 Puddin Ridge Road
explore in 3d

I'm Interested In

344 Puddin Ridge Road

or
  • CallDiana Brink

    License #NC 261938 | VA 0225218014

    (252) 435-4453
  • Top Picks

    Featured Properties

    • 101 Chickadee ST Pending

      $525,000

      101 Chickadee ST, Moyock, NC 27958

      • 4 Beds
      • 2 Baths
      • 2,239 Sq.Ft.
    • 101 Chickadee Street Active Under Contract

      $525,000

      101 Chickadee Street, Moyock, NC 27958

      • 4 Beds
      • 3 Baths
      • 2,239 Sq.Ft.
    • 109 Foxglove DR For Sale

      $525,000

      109 Foxglove DR, Moyock, NC 27958

      • 4 Beds
      • 2 Baths
      • 2,121 Sq.Ft.
    • 109 Foxglove Drive For Sale

      $525,000

      109 Foxglove Drive, Moyock, NC 27958

      • 4 Beds
      • 2 Baths
      • 2,121 Sq.Ft.
    • 105 Waters DR Pending

      $475,000

      105 Waters DR, Moyock, NC 27958

      • 3 Beds
      • 2 Baths
      • 2,242 Sq.Ft.
    • 105 Waters Drive Active Under Contract

      $475,000

      105 Waters Drive, Moyock, NC 27958

      • 3 Beds
      • 3 Baths
      • 2,242 Sq.Ft.
    • 125 Moyock Landing DR B For Sale

      $385,000

      125 Moyock Landing DR B, Moyock, NC 27958

      • 3 Beds
      • 2 Baths
      • 1,795 Sq.Ft.
    • 125 Moyock Landing Drive B For Sale

      $385,000

      125 Moyock Landing Drive B, Moyock, NC 27958

      • 3 Beds
      • 3 Baths
      • 1,795 Sq.Ft.
    View All

    Follow Us On Instagram